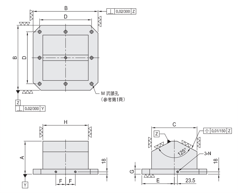
CT-807760
訂貨編號(hào) | A | B | C | D | E | F | G | H | M | N | Mounting holes | KG |
CT-80 7760 | 254 | 500 | 350 | 400 | 250 | 75 | 40 | 350 | M16 | M16 | 8 | 144 |
※ 特殊尺寸可另行訂製!



